Micro Yuan'er, Beijing 微杂院
04 December 2015



































































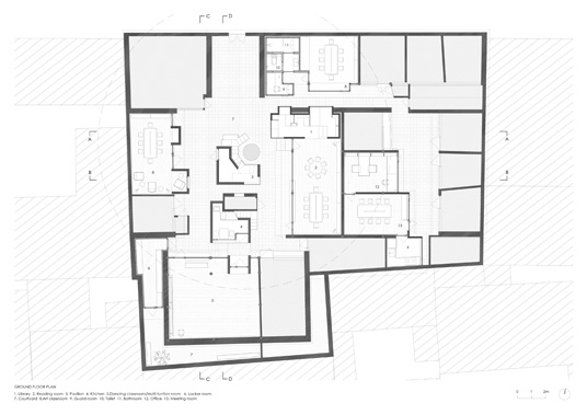
Cha’er hutong is a quiet spot among the busy Dashilar area, situated one kilometer from the Forbidden City in the city centre of Beijing. The #8 Cha’er Hutong courtyard is a typical “Da-Za-Yuan”—big messy courtyard—once occupied by over a dozen families. Over the past fifty years, each family built a small add-on kitchen in the courtyard. These add-on structures are usually considered as urban scrap and all of them have been wiped out with the renovation practices during the past years.
Different from the conventional redevelopment strategies, by redesigning, renovating and reusing the add-on structures in the hutong courtyards, the project allows Beijing citizens and the government to see new and sustainable possibilities for how to put our messy additions to good use. Maybe they can be recognized as cultural relics and critical layers of recent Beijing’s hutong life rather than things that should be erased entirely.
Project Data
Name: “Micro Yuan’er" Hutong Children’s Library and Art Centre
Location: No.8 Cha'er Hutong, Dashilar, Beijing, China
Built Area: 145 m²
Design/Construction: 2012/2014
Firm: ZAO/standardarchitecture
Architect: Zhang Ke
Project Team: Zhang Mingming, Fang Shujun, Ao Ikegami, Huang Tanyu, Ilaria Positano, Wang Ping, Chang Zhehui
“微杂院”
“微杂院”项目所处的茶儿胡同8号院子位于北京前门大栅栏区域,距离紫禁城直线距离1公里。院子是一个曾经居住着12户人家的典型大杂院。在过去的五、六十年间,每户人家都在院子中加建了小厨房——这些所谓的“未授权”加建形成了非常有趣的社交网络和空间属性。在以往的城市更新项目中,这些自发的加建结构都被当做城市发展残余而一概抹去。
与一般的旧城改建思路不同,“微杂院”以当下的场所特质为出发点,将原有的建筑结构都予以保留,以居民自发加建的体量为参考,在尊重大杂院空间特质的前提下,对这些胡同中非正式的加建结构进行重新设计、修复和再利用。“微杂院”在让胡同的日常生活更加丰富多彩的同时,也以自身作为一个鲜活的例子,希望让北京市民和政府看到对复杂旧城区域进行改造的新的可能性。这样,北京老城区中的那些大杂院才可能会逐渐被当作北京城市更新的基本单元,被视为有价值的城市形态,而不是应该被完全推平的城市发展残余。
项目概况
项目名称:“微杂院”胡同儿童图书馆及艺术中心
项目地点:北京大栅栏茶儿胡同8号
建筑面积:145 m²
设计/建成时间:2012/2014
设计方:标准营造
建筑师:张轲
项目团队:张明明,方书君,池上碧,黄探宇,Ilaria Positano,王平,常哲辉